Objektart
Adresse
Objektdaten
Informationen
Ausstattung
Details
Verkauf eines Reihenendhauses mit Vollkeller auf sonnigem Gartengrundstück
Es handelt sich um ein modernes und massiv gebautes Reihenendhaus mit zwei Vollgeschossen und Vollkeller in guter Wohnlage von Berlin-Lichterfelde. Das zum Verkauf stehende Wohnhaus befindet sich auf einem real geteilten Grundstück, welches im Jahr 1958 errichtet wurde. Das gut aufgeteilte, familienfreundliche und lichtdurchflutete Reihenendhaus befindet sich auf einem sonnigen Gartengrundstück mit perfekter Südausrichtung.
Es teilt sich in Erdgeschoss, erstes Obergeschoss und Vollkeller auf.
Im Erdgeschoss befinden sich ein helles Wohn- und Esszimmer mit Zugang zur Südterrasse, eine Küche mit neuwertiger Einbauküche und zum Flur geöffnet. Vom Flur führt eine Treppe in das Obergeschoss und in den Vollkeller.
Die Wohnfläche im Erdgeschoss beträgt ca. 47 m².
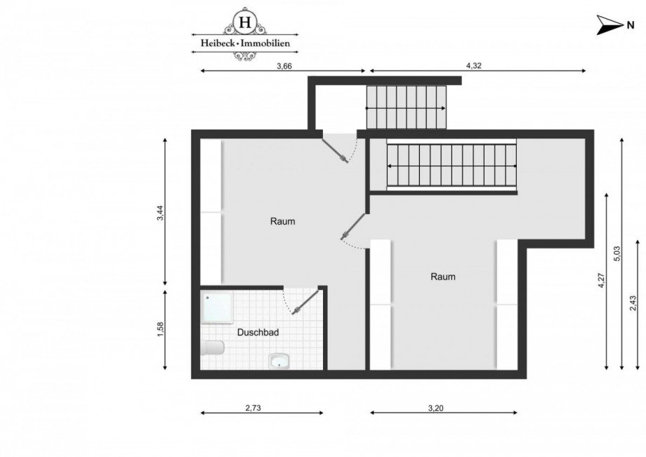
Im Obergeschoss befinden sich zwei Zimmer, ein Duschbad sowie ein Flur.
Die Wohnfläche im Obergeschoss beträgt ca. 46 m².
Im beheizbaren und gefliesten Vollkeller befinden sich zwei Räume und ein Badezimmer mit Dusche. In einem der Räume ist die Heizungstechnik untergebracht. Der Keller kann gut als Einliegerwohnung genutzt werden, weil es einen separaten Eingang gibt und alle Anschlüsse für eine Küchenzeile vorgesehen sind.
Die Nutzfläche im Vollkeller beträgt ca. 40 m². Die Raumhöhe beträgt ca. 1,90 m.
Die Terrasse ist perfekt nach Süden ausgerichtet. Der Garten ist geschmackvoll angelegt und gepflegt.
- solide Massivbauweise
- real geteiltes Grundstück
- große Terrasse mit Südausrichtung
- Einliegerwohnung im Vollkeller mit separatem Zugang
- gefliester und beheizbarer Vollkeller mit ca. 1,90 Meter Raumhöhe
- EG mit Rollläden ausgestattet
- neuwertige und moderne Einbauküche
- modernes Duschbad
- zweites Duschbad im Keller
- aus 3 Zimmern könnten auch leicht 4 gemacht werden
- schön angelegter und nach Süden ausgerichteter Garten
- TV über Kabelanschluss
- voll erschlossen
- virtueller Rundgang: https://my.matterport.com/show/?m=WLkBpxEG9ju
Die Immobilie liegt verkehrsgünstig und ist ideal für eine Familie ausgelegt. In unmittelbarer Nähe befinden sich mehrere Kitas, die Friedrich-Drake-Grundschule und die Clemens-Brentano-Grundschule. Mit dem Goethe-Gymnasium und der Max-von-Laue-Schule gibt es auch ein gutes Angebot an weiterführenden Schulen. Die Nahversorgung ist sehr gut: Zwei Supermärkte, ein Drogeriemarkt und ein Biomarkt stehen für den Einkauf zur Verfügung. Zwei Ärztehäuser und eine Apotheke befinden sich ebenfalls in naher Entfernung. Der nahe gelegene Teltowkanal lädt mit seiner Promenade zu Spaziergängen, Jogging und Radfahren ein. In der benachbarten Villenkolonie Lichterfelde-West sind zahlreiche Baudenkmäler zu entdecken. Cafés und eine Eisdiele laden zum Verweilen ein. Der Botanische Garten, die Seen Krumme Lanke und Schlachtensee sowie der Grunewald sind beliebte Ausflugsziele in der näheren Umgebung. Der Botanische Garten zählt mit einer Fläche von über 43 Hektar und etwa 22.000 verschiedenen Pflanzenarten zu den größten und bedeutendsten botanischen Gärten der Welt und ist der größte in Europa. Die belebte Einkaufsmeile Schlossstraße ist mit dem Auto oder Bus schnell zu erreichen. Dort finden sich mehrere Einkaufscenter, 2 Kinos und das Schlossparktheater. Lichterfelde ist ein Ortsteil im Berliner Bezirk Steglitz-Zehlendorf. Lichterfelde grenzt im Nordwesten an Dahlem, im Nordosten an Steglitz, im Westen an Zehlendorf und im Osten an Lankwitz sowie im Süden an das Land Brandenburg. Die Verkehrsanbindung ist durch die B1, zwei S-Bahnlinien und mehrere Buslinien ideal.
Vor Absprache eines Innenbesichtigungstermins möchten wir Sie freundlichst bitten, eine diskrete
Außenbesichtigung der Immobilie vorzunehmen, um sich Ihren persönlichen Eindruck von der Lage,
dem Wohnumfeld und der Umgebung zu verschaffen. Sollte Ihnen das Wohnumfeld zusagen, dann
vereinbaren Sie bitte mit uns einen Innenbesichtigungstermin.
Ansprechpartner
Telefax: +49 3322-1255190
info@heibeck-immobilien.de
Energieausweis (Bedarfsausweis)
263,03 kWh / (m²*a) Endenergiebedarf
263,03 kWh / (m²*a) Endenergiebedarf
263,03 kWh / (m²*a) Endenergiebedarf
Weitere Informationen
| Wesentlicher Energieträger | Gas |
| Energieausweis Ausstelldatum | 2026-01-19 |
| Energieausweis gültig bis | 18.1.2036 |
| Energieausweis Jahrgang | ab dem 1.5.2014 |
| Energieausweis Werteklasse | H |
| Energieausweis Baujahr | 1958 |
| Energieausweis Gebäudeart | Wohngebäude |
| Heizung | Zentralheizung |
| Befeuerung | Gas |
Ich bin damit einverstanden, dass mir Karten von Google angezeigt werden. Es gelten die Datenschutzbedingungen von Google (https://policies.google.com/privacy).
Ich bin einverstanden