Imposantes 1-2 Familienhaus mit Gewerbeeinheit und Doppelgarage auf großem Grundstück
Objektart
Adresse
Objektdaten
Informationen
Ausstattung
Details
Verkauf modernes und energieeffizientes Ein- bis Zweifamilienhaus in idyllischer Lage
Es handelt sich um ein geschmackvoll ausgestattetes Ein- bis Zweifamilienhaus mit Fahrradschuppen, Doppelgarage und Doppelcarport auf einem ca. 4.006 m² großen Gartengrundstück.
Das Wohnhaus wurde ca. 1982 in grundsolider Massivbauweise errichtet und im Jahr 2014 kernsaniert inklusive Vollwärmeschutz.
Das Haus teilt sich in in Souterrain und Obergeschoss auf.
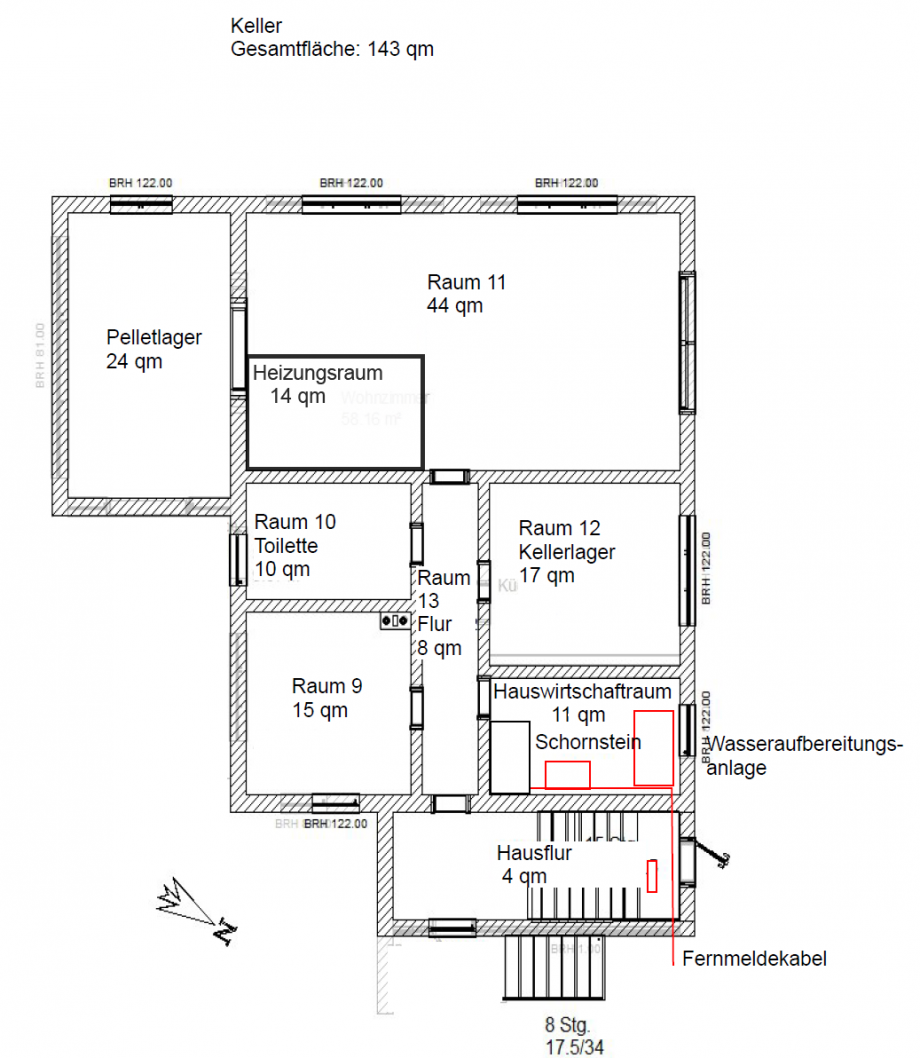
Im Souterrain befinden sich ein großes Wohnzimmer was z.Zt. als Werkstatt genutzt wird, zwei weitere Zimmer, ein Duschbad, ein Hauswirtschaftsraum, ein Heizungsraum, ein Vorratsraum für die Pallets, ein Flur sowie eine massive Treppe in das Obergeschoss.
Die Wohnfläche im Souterrain beträgt ca. 105 m².
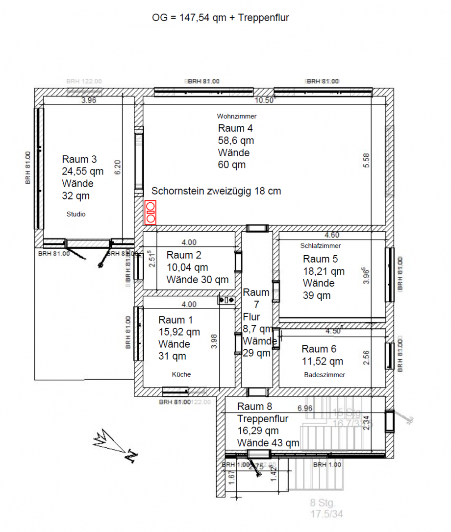
Im Obergeschoss befinden sich ein großes und helles Wohn-/ Esszimmer, drei weitere Zimmer (ein Zimmer hat einen Zugang zur Süd-Terrasse), eine Küche mit schöner Einbauküche, ein modernes Badezimmer mit Dusche und Badewanne, ein Flur sowie der Eingangsbereich mit Treppe in das Souterrain.
Die Wohnfläche im Obergeschoss beträgt ca. 166 m².
Auf dem sonnigen und idyllisch angelegten Gartengrundstück befinde sich eine Doppelgarage, ein Doppelcarport (besonders hoch) und ein Fahrradschuppen.
Die Nutzfläche in den Garagen und dem Fahrradschuppen betragen ca. 40 m².
- sehr ruhige und idyllische Wohnlage
- grundsolide Massivbauweise, Baujahr ca. 1982
- im Jahr 2014 kernsaniert
- Im Souterrain volle Wohnfläche (2,40m hoch)
- Fassade mit Vollwärmeschutz
- Einfahrt und Wege gepflastert
- Fenster mit 3-fach Verglasung
- teilweise bodentiefe Fenster
- elektrische Rollläden an allen Fenstern
- Haus vollständig mit Fußbodenheizung ausgestattet
- moderne Einbauküche mit hochwertigen Elektrogeräten
- schöner Küchenofen mit Ceranfeld
- lichtdurchfluteter Wohn- und Essbereich
- Duschbad im Souterrain
- Badezimmer im Obergeschoss mit Badewanne und Dusche
- Moderne Holzpellets Heizung mit Warmwasserspeicher aus 2015
- Solarthermie zur Heizungsunterstützung
- 3 Kaminöfen
- 2 Terrassen (eine überdacht)
- Doppelgarage
- Doppelcarport (besonders hoch)
- Fahrradschuppen
- Grundwasserbrunnen mit elektrischer Pumpe
- High-Speed DSL und SAT-TV im Haus
- Grundstück vollständig eingefriedet
- teil erschlossen (eigenes Klärwerk)
- Link zum virtuellen Rundgang: https://my.matterport.com/show/?m=qVNMC3P2bM9
Willkommen in der charmanten Gemeinde Borkheide, einem beschaulichen Ort mit einer idyllischen Lage im Landkreis Potsdam-Mittelmark, Brandenburg. Diese bezaubernde Region besticht durch ihre Nähe zur Natur und die gleichzeitig gute Anbindung an die urbanen Zentren.
Borkheide liegt nur etwa 60 Kilometer südwestlich von Berlin und ist damit der perfekte Ort für Naturliebhaber, die die Vorzüge des Stadtlebens schätzen, aber auch die Ruhe und Schönheit der ländlichen Umgebung genießen möchten. Die Anbindung an die Bundesstraße B2 ermöglicht eine schnelle und unkomplizierte Verbindung nach Berlin und in die umliegenden Städte.
Die Gemeinde ist eingebettet in die wunderschöne Nuthe-Nieplitz-Niederung, einem Naturschutzgebiet, das für seine reiche Flora und Fauna bekannt ist. Hier finden Sie ausgedehnte Wälder, idyllische Seen und malerische Rad- und Wanderwege. Die Naturliebhaber kommen hier voll auf ihre Kosten und können die Schönheit der Region zu jeder Jahreszeit genießen.
Borkheide bietet eine hervorragende Infrastruktur mit Schulen, Kindergärten und Einkaufsmöglichkeiten, die alle fußläufig erreichbar sind. Der Bahnhof Borkheide verbindet Sie mit der Regionalbahn, die Sie direkt ins Zentrum von Berlin bringt. Dies macht Borkheide zu einer attraktiven Wohnoption für Pendler.
Die Nachbarschaft ist geprägt von einer freundlichen und familiären Atmosphäre. Hier findet man eine Gemeinschaft, die Wert auf Zusammenhalt und gegenseitige Unterstützung legt. Ob gemeinsame Feste, lokale Veranstaltungen oder einfach nur ein nettes Gespräch über den Gartenzaun hinweg - in Borkheide fühlt man sich schnell wie zu Hause.
Entdecken Sie die Vorzüge des Lebens in Borkheide und genießen Sie die perfekte Balance zwischen Naturidylle und urbaner Nähe.
In dem Haus kann ein ruhiges Gewerbe wie z.B. eine kleine Werkstatt, Nagelstudio, Kosmetikstudio oder eine Physiotherapie betrieben werden.
Ansprechpartner
Telefax: +49 3322-1255190
info@heibeck-immobilien.de
Energieausweis (Bedarfsausweis)
115,85 kWh / (m²*a) Endenergiebedarf
115,85 kWh / (m²*a) Endenergiebedarf
115,85 kWh / (m²*a) Endenergiebedarf
Weitere Informationen
| Wesentlicher Energieträger | Holzpellets |
| Energieausweis Ausstelldatum | 2026-01-28 |
| Energieausweis gültig bis | 27.1.2036 |
| Energieausweis Jahrgang | ab dem 1.5.2014 |
| Energieausweis Werteklasse | D |
| Energieausweis Baujahr | 1982 |
| Energieausweis Gebäudeart | Wohngebäude |
| Heizung | Fußbodenheizung |
| Befeuerung | Pellet |
Ich bin damit einverstanden, dass mir Karten von Google angezeigt werden. Es gelten die Datenschutzbedingungen von Google (https://policies.google.com/privacy).
Ich bin einverstanden