Objektart
Adresse
Objektdaten
Informationen
Ausstattung
Details
Zum Verkauf steht ein charmantes Einfamilienhaus auf einem großzügigen Gartengrundstück mit viel Platz für Freizeit und individuelle Gestaltungsmöglichkeiten.
Das Wohnhaus wurde ca. 1910 in solider Bauweise errichtet und befindet sich auf einem Grundstück mit einer Größe von ca. 1.950 m². Zwischen 2000 und 2005 wurden wichtige Modernisierungsmaßnahmen durchgeführt. In diesem Zeitraum wurden z.B. das Dach, die Fassade sowie die Fenster erneuert.
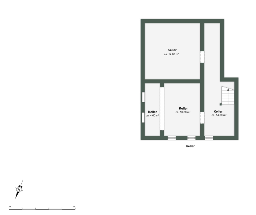
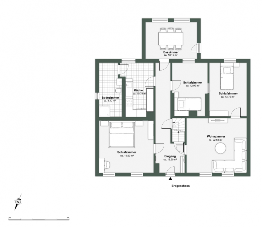
Das Wohnhaus besteht aus Erdgeschoss, nicht ausgebautem Dachgeschoss und Teilkeller. Die Wohnfläche beträgt ca. 90 m².
Im Wohnhaus befinden sich fünf Zimmer, eine Küche sowie ein Badezimmer. Die Raumaufteilung bietet eine gute Grundlage für individuelles Wohnen und weitere Gestaltungsmöglichkeiten.
Im Eingangsbereich des Hauses befindet sich der Flur, von dem aus sowohl der Zugang zum Dachboden als auch zum Gewölbekeller erreichbar ist.
Das Haus ist teilunterkellert. Im Keller befindet sich unter anderem ein historischer Gewölbekeller, der sich ideal als Lager- oder Vorratsraum eignet. Die Kellerfläche beträgt ca. 50 m².
Der Dachboden bietet eine gute Ausbaureserve und kann bei Bedarf zu weiterer Wohnfläche von ca. 60 m² ausgebaut werden.
Beheizt wird das Haus über eine Ölheizung (ca. 26 Jahre alt) mit einem Öltankvolumen von ca. 3.000 Litern.
Auf dem Grundstück befinden sich mehrere Nebengebäude, darunter vier Geräteschuppen sowie ein alter Hühnerstall, die vielseitige Nutzungsmöglichkeiten bieten.
Das großzügige Grundstück bietet viel Platz für Gartenliebhaber. Zusätzlich befindet sich auf dem Grundstück eine Sammelgrube zur Nutzung von Regenwasser, die beispielsweise für die Gartenbewässerung verwendet werden kann.
Das Grundstück verfügt über zwei Einfahrten und ist von zwei Seiten erschlossen. Dadurch besteht grundsätzlich die Möglichkeit einer Grundstücksteilung oder weiteren Bebauung (vorbehaltlich behördlicher Genehmigung).
Das Objekt bietet damit eine interessante Kombination aus ruhiger Lage, großzügigem Grundstück und Entwicklungspotenzial.
- Teilsaniertes Einfamilienhaus
- Wohnfläche ca. 90 m²
- Grundstücksfläche ca. 1.950 m²
- 5 Zimmer
- 1 Badezimmer
- separate Küche
- Modernisierungen
- Dach erneuert (ca. 2005)
- Fassade erneuert (ca. 2005)
- Kunststofffenster erneuert (ca. 2005)
- Ölheizung (ca. 26 Jahre alt)
- Öltank ca. 3.000 Liter
- Teilunterkellert (ca. 50 m²)
- historischer Gewölbekeller
- Grundstück von zwei Seiten erschlossen
- zwei Einfahrten
- Grundstück potenziell teilbar (vorbehaltlich behördlicher Genehmigung)
- 4 Geräteschuppen
- alter Hühnerstall
- Regenwasser-Sammelgrube für Gartenbewässerung
- großer Gartenbereich
- ruhige, ländliche Lage im Havelland
Link zum virtuellen Rundgang: https://my.matterport.com/show/?m=hZ1g3xcq6Na
Wagenitz liegt idyllisch im Herzen des Havellands, eingebettet in die sanfte Hügellandschaft zwischen Wäldern, Feldern und Wiesen. Das beschauliche Dorf bietet seinen Bewohnern eine naturnahe Lebensweise mit hoher Lebensqualität und wohltuender Ruhe - fernab vom städtischen Trubel und dennoch gut angebunden.
Die Kreisstadt Friesack sowie die Städte Nauen und Rathenow sind in kurzer Fahrzeit erreichbar und bieten eine solide Infrastruktur mit Einkaufsmöglichkeiten, Schulen, Ärzten und weiteren Einrichtungen des täglichen Bedarfs. Über die nahegelegenen Bundesstraßen gelangt man zügig in Richtung Berlin, das in rund einer Stunde Fahrzeit erreichbar ist.
Die Umgebung lädt zu ausgedehnten Spaziergängen, Radtouren und Ausflügen in die reizvolle Havelland-Landschaft ein. Zahlreiche Seen und Wasserwege in der Region bieten zudem Möglichkeiten für Wassersport und Erholung.
Wer das ruhige Landleben schätzt, einen großen Garten genießen möchte und gleichzeitig Wert auf eine gute Anbindung an die Region legt, wird in Wagenitz eine ideale Heimat finden. Hier verbinden sich Natur, Gemeinschaft und Lebensqualität auf harmonische Weise.
Ein Haus mit Geschichte
Das Haus ist seit vielen Jahrzehnten eng mit der Geschichte seiner Eigentümer verbunden. Sie zogen 1970 in das damalige Haus in der Dorfstraße ein. Zu dieser Zeit wurde der Hof noch teilweise landwirtschaftlich genutzt, da über den Hof Getreide für eine benachbarte Scheune angeliefert wurde.
Damals lebten hier die Eltern mit vier Kindern, und das Haus wurde Schritt für Schritt weiterentwickelt. In den 1980er Jahren wurde das erste Badezimmer eingebaut, zuvor wurde das Wasser über eine Pumpe auf dem Hof gewonnen.
Über viele Jahrzehnte wurde auch der große Garten intensiv bewirtschaftet. Besonders bekannt waren die ertragreichen Gemüsebeete, in denen unter anderem außergewöhnlich große Möhren wuchsen.
Das Haus war über mehr als fünf Jahrzehnte Mittelpunkt des Familienlebens und wurde stets gepflegt und genutzt.
Aufgrund veränderter Lebensumstände haben sich die Eigentümer schließlich dazu entschlossen, das Haus in neue Hände zu geben.
Es bietet nun die Gelegenheit für eine neue Familie, diesen Ort mit Leben zu füllen und seine Geschichte weiterzuführen.
Ansprechpartner
Telefax: +49 3322-1255190
info@heibeck-immobilien.de
Ich bin damit einverstanden, dass mir Karten von Google angezeigt werden. Es gelten die Datenschutzbedingungen von Google (https://policies.google.com/privacy).
Ich bin einverstanden